山里のまんなかに過ごす
崖地に広がる祖谷の山里、落合集落の中腹。ぐるり取り囲む穏やかな風景と時間。
ここに伝統的な屋敷構えと間取りを持つ二棟並びの茅葺き民家が誕生しました。
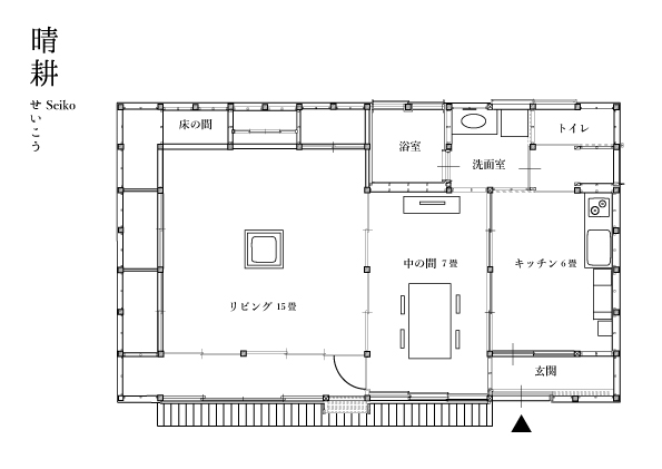
「晴耕」(せいこう)は二棟のうち「主屋」にあたる建物で、この地域の伝統的な民家の間取り(中寝間三間取)を持っています。南向きの広い縁側からは、急斜面に広がる対岸の集落の全景が見渡せます。
隠居屋であった隣接する「雨読」ともに、2012年7月1日にオープンしました。
※茅葺屋根の葺き替え工事のため現在ご利用いただけません。



間取り・設備
| ご利用案内 | |
|---|---|
| 定員 | 4名様 |
| 間取り | ダイニングキッチン(6畳間) / ナカノマ(7畳間) / リビング(15畳間、囲炉裏つき) / 洗面室 / トイレ / 浴室 |
| チェックイン | 15:00 〜 18:00 |
| チェックアウト | 10:00まで ※チェックアウトの手続きは不要です。 |
| 駐車場 | 乗用車2台分 |
| 注意事項 | 室内禁煙 / ペット同伴宿泊不可 |
| 設備 | ・玄関:番号式電子ロック ・冷暖房:エアコン / 床暖房 / ガスヒーター(夏季以外) ・その他:Wi-fi / テレビ / DVDプレーヤー / スピーカー(Bluetooth対応) / シャワートイレ / 洗濯機(洗剤あり) ・囲炉裏あり(調理不可。火起こし用の炭は別途要購入) |
| アメニティなど | ・アメニティ:浴衣(寝巻) / 歯ブラシセット / ヒゲソリ / コットンセット / ドライヤー ・バス:フェイスタオル / バスタオル / バスマット / シャンプー / コンディショナー / ボディーソープ / ハンドソープ ・寝具:敷布団 / シーツ / 掛布団 / 枕 ・その他:座布団 / スリッパ / ティッシュペーパー / 殺虫剤 / 蚊取り線香 / マッチ / 小型懐中電灯 / 救急セット / AED |
| キッチン | ・食器類:椀類 / 皿類 / カップ / グラス / カトラリー一式 ・調理設備:IHクッキングヒーター / 冷蔵庫 / オーブンレンジ / 電気ケトル / 圧力IH炊飯器 / トースター / カセットコンロ ・調理器具:両手鍋 / フライパン / 揚げ物用鍋 / やかん / ボウル / ザル / 包丁 / まな板 / 菜箸 / ピーラー / しゃもじ / レードル / ターナー / フライトング / ワインオープナー / 缶切り / おろし金 / 急須(鉄製)/ 茶漉し ・コーヒーセット:メジャーカップ / ミル / ドリッパー / フィルター※コーヒー豆はご持参ください ・調味料:塩 / こしょう / 醤油 / サラダ油 / みりん / 砂糖 ・その他:ラップ / アルミホイル / キッチンペーパー / 台拭き / コースター / ランチョンマット / 祖谷の番茶 / ミネラルウォーター(非常用) |
茅葺き民家は宿泊専用の施設となります。
ご宿泊のお客様以外の、宿内部の見学等はできませんのであらかじめご了承下さい。
晴耕までのアクセス
※直接宿でのチェックイン(ダイレクトチェックイン)をご希望の場合は事前にご連絡下さい。
こちらの動画はダイレクトチェックイン準拠となります。通常のチェックインは受付事務所へお越し下さい。
チェックインについてはこちらを参照くださいませ。
内観
宿の内観画像です。
VR画像になっておりますので、右下の「VR」から拡大してご覧ください。
玄関・キッチン
中の間
浴槽
リビング


