雲と山がおりなす
風景画を眺めるように
落合集落の中腹、地域の人からは「お宮さん」の愛称で親しまれる三所神社のすぐ隣にある家。
主屋と隠居屋の二棟並びの宿で、「雲外(うんがい)」は二棟のうち「主屋」であった建物です。
伝統的な間取りに加え風呂、トイレ、さらにシャワールーム部分を増築し古き良き部分は損ねずにより快適に滞在できる造りになっています。
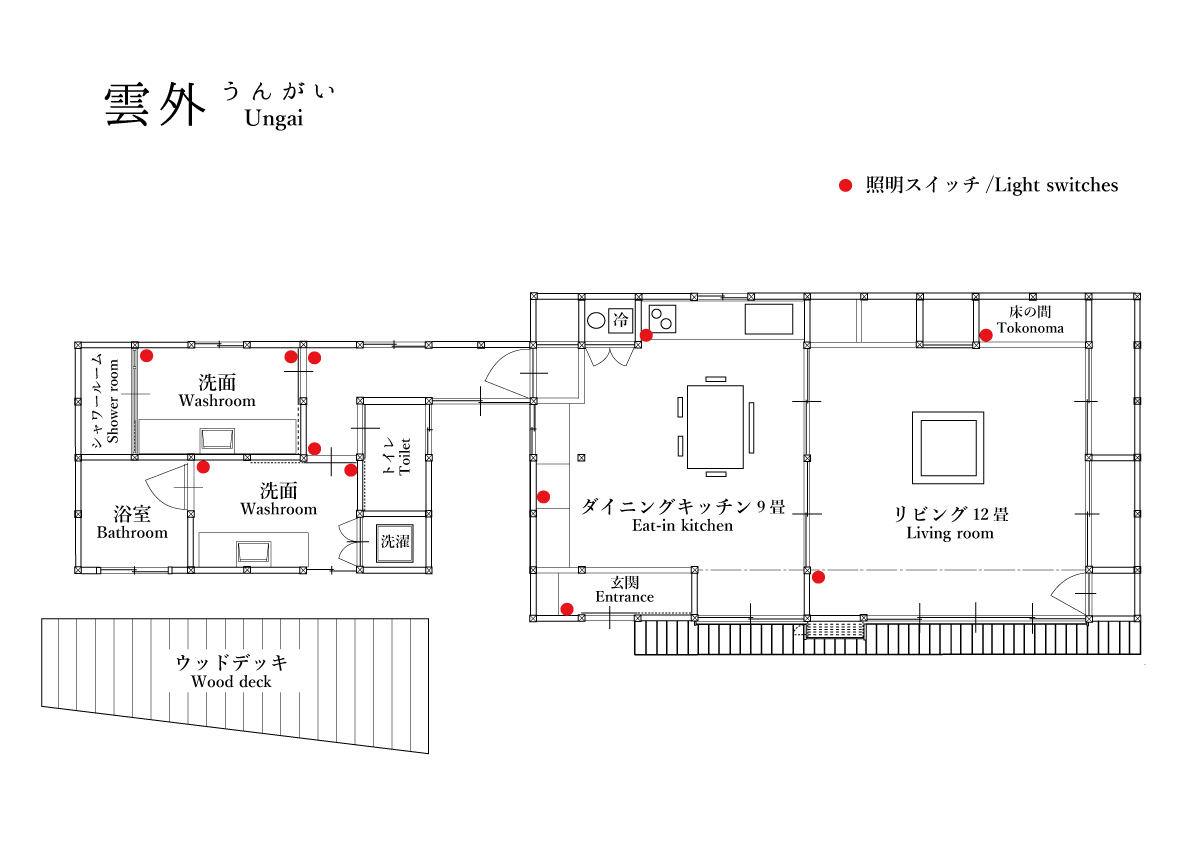
間取り・設備
| ご利用案内 | |
|---|---|
| 定員 | 5名様 (推奨定員:4名様) |
| 間取り | ダイニングキッチン(9畳間) / リビング(12畳間、囲炉裏つき) / 洗面室 / トイレ / 浴室 / シャワールーム |
| チェックイン | 15:00 〜 18:00 |
| チェックアウト | 10:00まで ※チェックアウトの手続きは不要です。 |
| 駐車場 | 乗用車2台分 ※駐車スペースから宿までは石段を上る必要がありますので、お足元の不自由な方はお気をつけ下さい。 |
| 注意事項 | 室内禁煙 / ペット同伴宿泊不可 |
| 設備 | ・玄関:番号式電子ロック ・冷暖房:エアコン / 床暖房 / ガスヒーター(夏季以外) ・その他:Wi-fi / テレビ / DVDプレーヤー / スピーカー(Bluetooth対応) / シャワートイレ / 洗濯機(洗剤あり) ・囲炉裏あり(調理不可。火起こし用の炭は別途要購入) |
| アメニティなど | ・アメニティ:浴衣(寝巻) / 歯ブラシセット / ヒゲソリ / コットンセット / ドライヤー ・バス:フェイスタオル / バスタオル / バスマット / シャンプー / コンディショナー / ボディーソープ / ハンドソープ ・寝具:敷布団 / シーツ / 掛布団 / 枕 ・その他:座布団 / スリッパ / ティッシュペーパー / 殺虫剤 / 蚊取り線香 / マッチ / 小型懐中電灯 / 救急セット / AED |
| キッチン | ・食器類:椀類 / 皿類 / カップ / グラス / カトラリー一式 ・調理設備:IHクッキングヒーター / 冷蔵庫 / オーブンレンジ / 電気ケトル / 圧力IH炊飯器 / トースター / カセットコンロ ・調理器具:両手鍋 / フライパン / 揚げ物用鍋 / やかん / ボウル / ザル / 包丁 / まな板 / 菜箸 / ピーラー / しゃもじ / レードル / ターナー / フライトング / ワインオープナー / 缶切り / おろし金 / 急須(鉄製)/ 茶漉し ・コーヒーセット:メジャーカップ / ミル / ドリッパー / フィルター※コーヒー豆はご持参ください ・調味料:塩 / こしょう / 醤油 / サラダ油 / みりん / 砂糖 ・その他:ラップ / アルミホイル / キッチンペーパー / 台拭き / コースター / ランチョンマット / 祖谷の番茶 / ミネラルウォーター(非常用) |
茅葺き民家は宿泊専用の施設となります。
ご宿泊のお客様以外の、宿内部の見学等はできませんのであらかじめご了承下さい。
内観
宿の内観画像です。
VR画像になっておりますので、右下の「VR」から拡大してご覧ください。
ダイニングキッチン
リビング
洗面所
浴室
雲外までのアクセス
※直接宿でのチェックイン(ダイレクトチェックイン)をご希望の場合は事前にご連絡下さい。
こちらの動画はダイレクトチェックイン準拠となります。通常のチェックインは受付事務所へお越し下さい。
チェックインについてはこちらを参照くださいませ。






